Skip To Content

2606 Paul Minnie Avenue

Santa Cruz, CA 95062
  • $1,698,888
  • STATUS: Active
  • ON SITE: 19 Days
  • ID#: ML82026158
UPDATED: 47 min ago
$1,698,888
  • 3
    BEDS
  • 0.63
    ACRES
  • 1
    BATHS
  • 0
    1/2 BATHS
  • 1,260
    SQFT
  • $1,348
    $/SQFT
Neighborhood:
Type:
Single-Family Home
Built:
1909
County:

School Ratings & Info

School District:
Listing Agent(s): Kenrick Do of K&K Homes Realty ((408) 599-3401)


Description

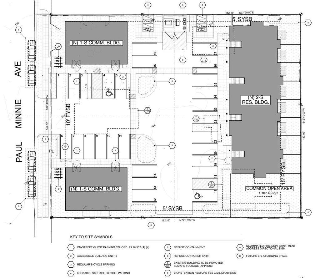
The proposed development site offers a highly promising opportunity for a mixed-use project that integrates modern residential apartments with vibrant commercial spaces. The tentative plan include 15 units apartment and 2 commercial buildings.

Monthly Payment Calculator



Based on information from California Regional Multiple Listing Service, Inc. as of 2025-11-18T11:27:21.347. This information is for your personal, non-commercial use and may not be used for any purpose other than to identify prospective properties you may be interested in purchasing. Display of MLS data is deemed reliable but is not guaranteed accurate by the MLS or Better Living Socal Group Corporation. Licensed in the State of California, USA.
www.betterlivingsocalhomes.com/homes/169355888
Print Image

2606 Paul Minnie Avenue Santa Cruz, CA 95062

  • Price: $1,698,888
  • Status: Active
  • On Site: 19 Days
  • Updated: 47 min ago
  • ID#: ML82026158
3
Beds
1
Baths
0
½ Baths
0.63
Acres
1,260
SQFT
$1,348
$/SQFT
1909
Built
Neighborhood:
699 - Not Defined
County:
Santa Cruz
Area:
699 - Not Defined
School District:
Other
Property Description
The proposed development site offers a highly promising opportunity for a mixed-use project that integrates modern residential apartments with vibrant commercial spaces. The tentative plan include 15 units apartment and 2 commercial buildings.
Exterior Features

Attached Garage YN No Foundation Details Concrete Perimeter Parking Total 1 Property Attached YN No Roof Composition View YN No

Interior Features

Common Walls No Common Walls Cooling None Cooling YN Yes Fireplace YN No Heating Floor Furnace Heating YN Yes

Property Features

Association YN No Garage YN Yes Listing Agreement Seller Reserved New Construction YN No Property Sub Type Single Family Residence Sewer Public Sewer Special Listing Conditions Standard Zoning PA



Based on information from California Regional Multiple Listing Service, Inc. as of 2025-11-18T11:27:21.347. This information is for your personal, non-commercial use and may not be used for any purpose other than to identify prospective properties you may be interested in purchasing. Display of MLS data is deemed reliable but is not guaranteed accurate by the MLS or Better Living Socal Group Corporation. Licensed in the State of California, USA.
 
Logo
Better Living Socal Group Corporation
250 El Camino Real #104
Tustin CA, 92780
Listing Agent(s): Kenrick Do of K&K Homes Realty ((408) 599-3401)